Białoruska

nowe, wysokiej jakości, balkon, miejsce postojowe

945 000,00 PLN
17760.83 PLN/m2

53.77m2
3 pok.

Specyfikacja

Informacje podstawowe

Powierzchnia
53.77 m2
Rynek
wtórny
Liczba pokoi
3
Czynsz administracyjny
650 PLN
Stan prawny
stan prawny
Dostępne od
2025-07-01
Rynek
Otwarty

Budynek

Rodzaj budynku
wysoki blok
Rok budowy
2024
Liczba pięter
Piętro
1
Winda
nie

Media / standard

Stan nieruchomości
idealny

Pomieszczenia

Liczba łazienek
1
Liczba toalet
0
Typ kuchni
Aneks

Lokalizacja

Miejscowość
Kraków
Dzielnica / osiedle
Małopolskie, Kraków, Kraków-Podgórze, Podgórze Duchackie
Białoruska

Małopolskie, Kraków, Kraków-Podgórze, Podgórze Duchackie

Opis nieruchomości


Na sprzedaż nowe, funkcjonalne i starannie wykończone 3-pokojowe mieszkanie z balkonem i miejscem postojowym w garażu podziemnym, zlokalizowane w spokojnej części Krakowa – Wola Duchacka.


Wykańczane przez firmę, która znana jest z dbałości o każdy detal oraz korzystanie z bardzo dobrej klasy materiałów.
Czuć to wchodząc na mieszkanie.



Mieszkanie jest gotowe do zamieszkania. Zostało wykończone z dużą dbałością o detale, z wykorzystaniem wysokiej jakości materiałów. Posiada zabudowę meblową na wymiar, sprzęt AGD oraz klimatyzację.


Podstawowe informacje:
Adres: Kraków, ul. Białoruska 69 (Wola Duchacka)
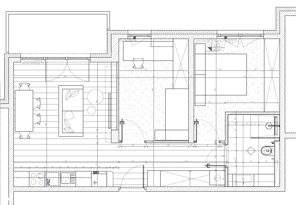
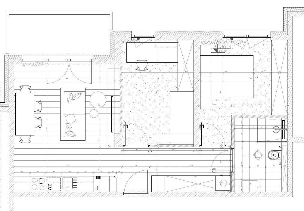
Powierzchnia: 53,77 m²
Liczba pokoi: 3
Balkon: 6 m²
Ekspozycja: zachodnia
Miejsce postojowe: 1 w garażu podziemnym


Lokalizacja:
Mieszkanie znajduje się w nowoczesnym budynku z 2024 roku, na rogu ulicy Białoruskiej i Malborskiej. W bezpośrednim sąsiedztwie znajdują się przedszkola, żłobek, szkoły, sklepy spożywcze, punkty usługowe i restauracje. Dobry dostęp do komunikacji miejskiej.


Opis mieszkania:
Lokal znajduje się na pierwszym piętrze 11-piętrowego budynku z windą. Budynek spełnia aktualne normy energetyczne. Do wejścia do budynku i garażu służy aplikacja mobilna.


Układ pomieszczeń:
  • Salon z aneksem kuchennym – 19,7 m²
  • Sypialnia 1 – 10,6 m²
  • Sypialnia 2 – 10,7 m²
  • Łazienka – 5,7 m²
  • Przedpokój – 7,0 m²
  • Balkon – 6,0 m²


Kuchnia została wykonana na wymiar i wyposażona w nowoczesne sprzęty:
płytę indukcyjną, piekarnik, zmywarkę oraz lodówkę.

W salonie zainstalowano klimatyzację.

W łazience znajduje się ogrzewanie podłogowe.

W przedpokoju znajduje się pojemna szafa w zabudowie.

Na podłodze położone są naturalne deski dębowe marki Boen.

Ściany pomalowane są na biało, z możliwością zmiany koloru przez nowego właściciela.


Cena miejsca postojowego w garażu podziemnym: 45 000 zł
Ceny zawierają podatek VAT. Kupujący nie płaci podatku PCC (2%). Mieszkanie nie jest obciążone hipoteką.


Jeśli zależy ci na prawdziwej jakości na długie lata - zapraszam do kontaktu i umówienia się na prezentację.

Mateusz Rogozik
Livinder
Tel. 576-814-914
Email: mateusz.rogozik@livinder.pl

Wyróżnione oferty

[ESC] lub