Polna

4 pokojowe domy w stanie deweloperskim! Liszki

1 070 000,00 PLN
7430.56 PLN/m2

144m2
4 pok.

Zdjęcia nieruchomości

Specyfikacja

Informacje podstawowe

Powierzchnia
144 m2
Działka
496 m2
Powierzchnia użytkowa
98.16 m2
Rynek
Pierwotny
Liczba pokoi
4
Stan prawny
stan prawny
Rynek
Otwarty

Budynek

Typ domu
wolnostojący
Rok budowy
2025
Stan budynku
Deweloperski
Liczba pięter
2
Materiał
Pustaki
Dach
Dachówka

Działka

Kształt działki
Prostokątny
Ogrodzenie
siatka

Pomieszczenia

Liczba łazienek
2
Liczba toalet
0
Typ kuchni
Otwarty

Otoczenie

Droga dojazdowa
Kostka brukowa

Lokalizacja

Miejscowość
Liszki
Dzielnica / osiedle
Małopolskie, Krakowski, Liszki
Polna

Małopolskie, Krakowski, Liszki

Opis nieruchomości

Mam przyjemność zaprezentować Państwu wyjątkowe domy wolnostojące w stanie deweloperskim na osiedlu, zlokalizowanym w urokliwej miejscowości pod Krakowem a dokładniej w miejscowości Liszki.

Kupujący nie płaci prowizji dla biura oraz 2 % podatku PCC.

✔️LOKALIZACJA


Dom usytuowany w malowniczej i cichej miejscowości Liszki - tylko 5 km od granicy miasta Krakowa.
W pobliżu Kraków, Kryspinów, Piekary, Rączna.
W pobliżu znajduje się centrum gminy Liszki a w nim między innymi: sklepy, restauracje, szkoła, przedszkole, żłobek, przychodnia, kościół, apteka, urząd gminy.
Ponadto osiedle znajduje się w odległości ok. 900m od przystanku MPK.
Droga dojazdowa gminna asfaltowa, następnie kostka brukowa. Cały teren ogrodzony i zagospodarowany i funkcjonalny.  

✔️DOM

Do sprzedania funkcjonalne domy wolnostojące o pow. użytkowej 98,16 m2 (pow. całkowita 144 m2) usytuowane na działkach o pow. od 492 m2 do 538 m2. 

Rozkład pomieszczeń: 
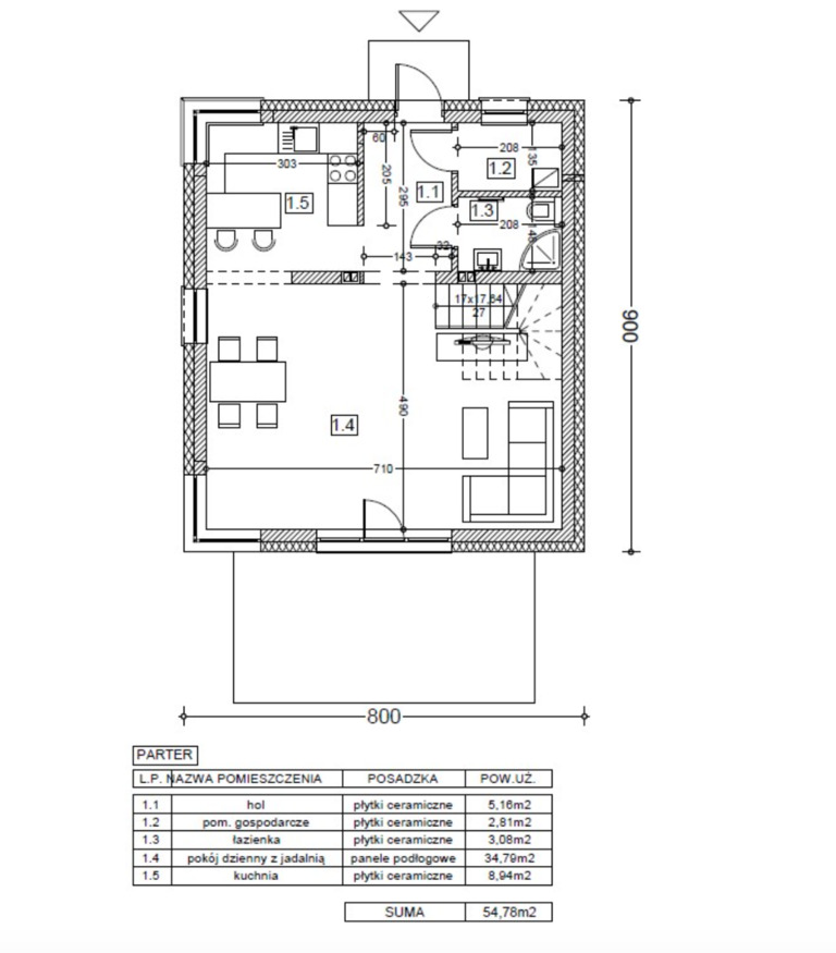
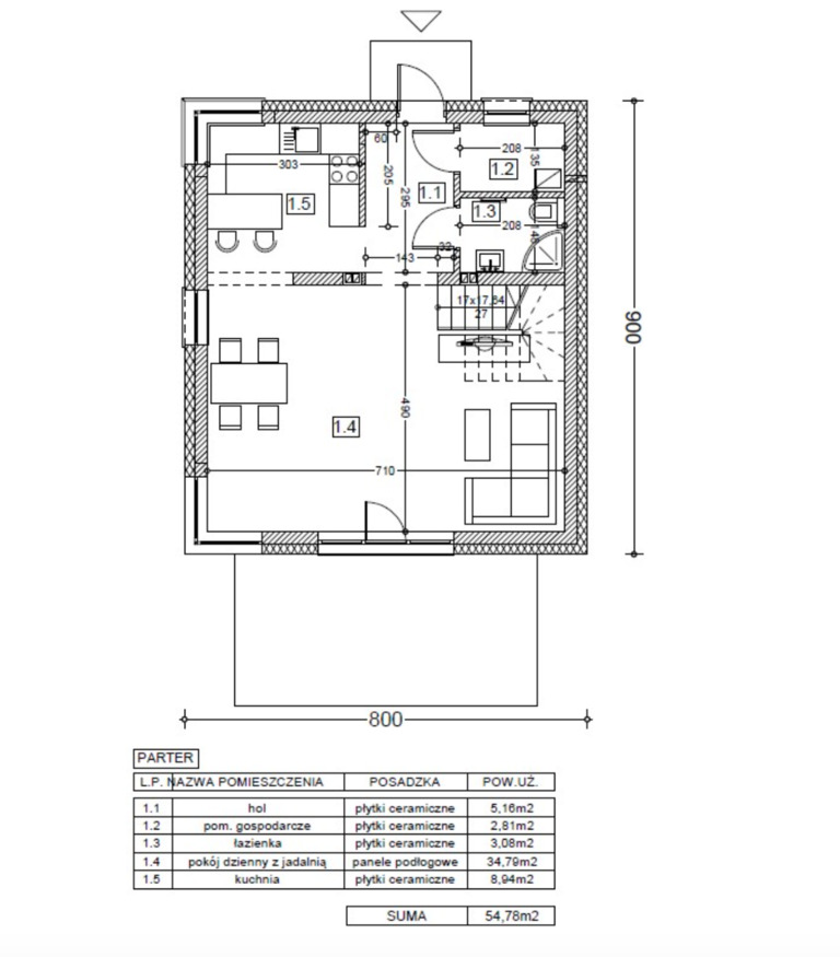
Parter (52,63m2)
Salon z jadalnią, otwarta kuchnia, łazienka, pom. gospodarcze oraz hol. 

Poddasze (45,53m2)
3 pokoje, łazienka oraz hol. 

Domy sprzedawane w stanie deweloperskim z następującymi udogodnieniami: 

Budynek wykonamy z najwyższej jakości materiałów. Między innymi fundamenty betonowe z hydroizolacją i ociepleniem 15 cm, konstrukcja jak i ściany działowe z pustaka ceramicznego (Porotherm 25 , Porotherm 11,5) tynki maszynowo-gipsowe. Ocieplenie styropianem 20 cm + tynk akrylowy, poddasze ocieplone wełną 30 cm, konstrukcja metalowa, płyty gipsowo-kartonowe. Na dachu dachówka ceramiczna, okna dachowe FAKRO(okna plastikowe trzyszybowe), rynny PCV, drzwi wejściowe ocieplane, balustrady zewnętrzne metalowe. 

Dodatkowo wykonana instalacja elektryczna, instalacja gazowa, instalacja antenowa oraz alarm z powiadomieniem jednostki interwencyjnej.
Ogrzewanie podłogowe. 

Dodatkowo:
Podbitka dachu drewniana, kominy wykonane systemem, zamontowane schody strychowe, barierki metalowe na balkonach, parapety wewnętrzne: kamień naturalny, kocioł z zamkniętą komorą spalania, zamontowany zestaw podtynkowy GEBERIT, wentylacja mechaniczna.

Podjazd i działka: 
• podjazd do budynku wyłożony kostką brukową
• działka ogrodzona
• brama wjazdowa i furtka
• taras z widokiem na ogród wyłożony kostką brukową
• teren wokół budynku wstępnie uporządkowany i zniwelowany

Przyłącz prądu, gazu, wody, kanalizacji wraz z wykonanymi instalacjami w budynku.
Budynek oddany do użytkowania - ODBIÓR TECHNICZNY



✔️KOSZT

DOSTĘPNE
B11         492 m2 1 070 000 PLN
B12        496 m2 1 070 000 PLN


Kupujący nie płaci prowizji dla biura oraz 2 % podatku PCC.

✔️KONTAKT

Zapraszam na prezentację nieruchomości !  ; ) 

Biuro Nieruchomości LIVINDER
Michał Matyja 
575 314 914
michal.matyja@livinder.pl

    Kontakt w sprawie oferty

    Wyróżnione oferty

    [ESC] lub