Stanisława Mitery

Stare Podgórze, wyremontowana kamienica +piwnica

599 000,00 PLN
17443.21 PLN/m2

34.34m2
2 pok.

Zdjęcia nieruchomości

Specyfikacja

Informacje podstawowe

Powierzchnia
34.34 m2
Rynek
wtórny
Liczba pokoi
2
Czynsz administracyjny
350 PLN
Stan prawny
stan prawny
Rynek
Otwarty

Budynek

Rodzaj budynku
Kamienica
Rok budowy
1938
Liczba pięter
2
Piętro
0

Media / standard

Stan nieruchomości
Do całkowitej renowacji

Pomieszczenia

Liczba łazienek
1
Liczba toalet
0
Typ kuchni
Aneks

Lokalizacja

Miejscowość
Kraków
Dzielnica / osiedle
Małopolskie, Kraków, Kraków-Podgórze
Stanisława Mitery

Małopolskie, Kraków, Kraków-Podgórze

Opis nieruchomości

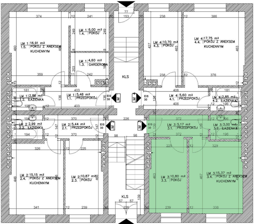
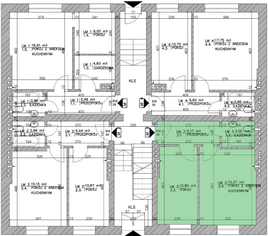
2 pokoje | 34,34 m² | parter | komórka | Stare Podgórze | kamienica po rewitalizacji


Na sprzedaż funkcjonalne mieszkanie 2-pokojowe o powierzchni 34,34 m², zlokalizowane na parterze zrewitalizowanej kamienicy z 1938 roku przy ul. Mitery, Stare Podgórze – w pobliżu Ronda Matecznego.


Układ: salon z aneksem kuchennym (15,37 m²), sypialnia (10,80 m²), łazienka (3,00 m²), przedpokój (5,17 m²). Wysokość pomieszczeń: 2,94 m. Mieszkanie jednostronne, jasne, z widokiem na ciche podwórze. Ekspozycja południe-wschód. Stan: do remontu.


Do lokalu przynależy duża komórka lokatorska w piwnicy. Ogrzewanie gazowe. Kameralny budynek – tylko 12 mieszkań. Odnowione części wspólne i dziedziniec.


Świetna lokalizacja, bardzo dobra komunikacja miejska, szybki dojazd do centrum i Kazimierza. W okolicy sklepy, punkty usługowe, restauracje oraz tereny spacerowe.


Skontaktuj się:
Mateusz.rogozik@livinder.pl
576814914





Wyróżnione oferty

[ESC] lub